Spatial Logistics: 
Translating complex topography into buildable technical assets.
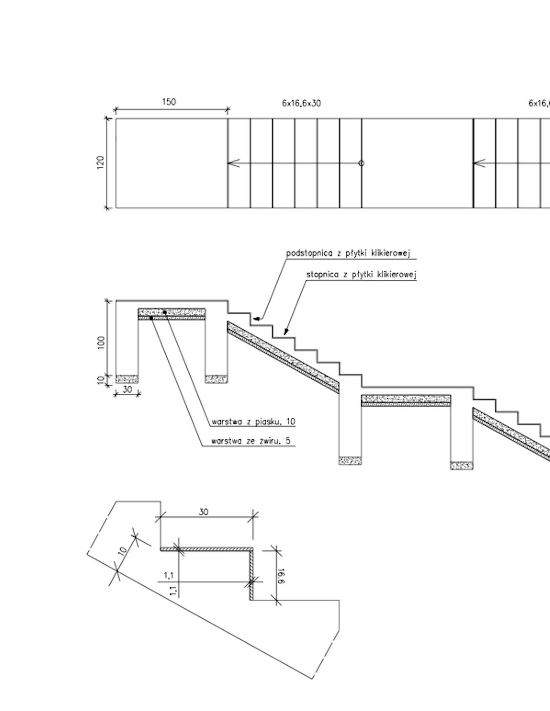
This project demonstrates my ability to navigate complex topography and structural integration within a high-use public environment. By translating large-scale conceptual sketches into precise AutoCAD and Rhino technical layouts, I ensured that the 'hard-scape' elements—paving, levels, and structural foundations—were both aesthetically cohesive and buildable. In a theatrical context, this reflects my capacity to manage the technical architecture of a stage, ensuring that a designer’s vision is structurally sound and accurately scaled for the workshop build.
Back to Top